mt innovation corridor gateway - grow with us.PNG

Mission: Create a community that houses best in class businesses from startups to fortune 100 companies.

Primary Objectives:

  • Build an iconic gateway to our community and state;

  • Provide class A bioscience space;

  • Create a catalytic culture for growth;

  • Achieve a pathway to long-term sustainability leveraging a PPP model.

Click here to learn more

Feasibility Study

Background

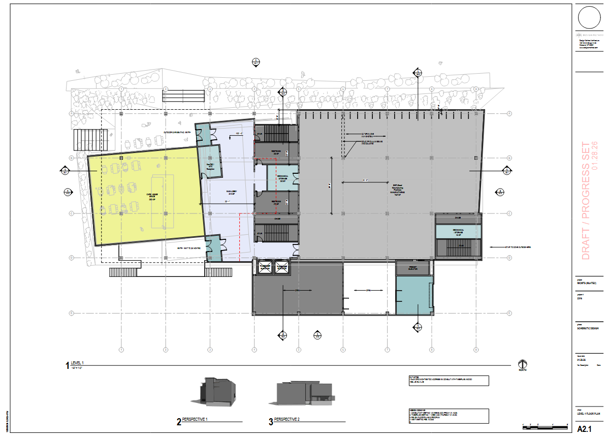
In 2020, MonTEC commissioned a study that would help support future development of the Montana Innovation Corridor Gateway. The targeted site encompasses underutilized ground on the banks of the Clark Fork River -just north of the main University of Montana (UM) campus, on East Broadway. This 10-acre site is prime real estate, due to its proximity to the UM facilities, an existing at-capacity technology incubator, downtown Missoula, Interstate-90, the river, and a robust trail system. This site consists of two parcels, one that currently serves as the home of MonTEC, a high-growth, technology-focused business incubator, and another that is home to the recently constructed Missoula College (140,000 SF). There is ample space on the site for higher density, mixed-use development that could provide lab, office, incubator, and support spaces as well as other complementary uses.

Click here to download a summary of the Feasibility Study.

Request for Proposals

Background

REQUEST FOR PROPOSALS FOR THE PRIVATE DEVELOPMENT OF THE MONTANA INNOVATION CORRIDOR GATEWAY IN MISSOULA, MONTANA

The University of Montana and Montana Technology Enterprise Center (Issuers) are seeking proposals from development firms to privately finance, construct, and manage a redevelopment project on University of Montana owned ground on the UM Missoula College site and the MonTEC site on East Broadway, Missoula, MT. Successful respondent will then finalize contract with Issuers that will include long-term land lease.

Redevelopment of these properties will further Issuers’ missions of promoting economic growth through support of startups, technology commercialization, and research and development. Redevelopment will simultaneously create a pathway to sustainable support for Issuers’ essential economic development functions by leveraging existing assets in a manner that generates a long-term revenue stream for Issuers while meeting a state-wide need for bioscience space, creating employment opportunities, and expanding tax base. 

For more information, please fill out the following form. Information submitted will only be used to process RFP and Feasibility Study information requests and will not be used for marketing purposes. For any questions about the RFP, please email management@montanaenterprisecenter.com.

There is no longer a current, active request for proposal. Click here to download the historical RFP to learn more about the project.

Click to Jump to RFP Q&A

RFP Questions and Answers

All answers to submitted questions regarding the RFP will be posted publicly here. Questions can be submitted to management@montanaenterprisecenter.com.

“Are both sites going to remain or will there be an opportunity to build on a fresh site? Will development be mainly infill?”

The UM Missoula College building will remain. There is space on the UM Missoula College site for additional building or structures. Underground parking may be necessary.

The MonTEC site may eventually be razed/replaced. The MonTEC facility is a single level building on a riverfront property. Existing tenants in the MonTEC need more space but there is none available.

“Can we get the 2020 annual lease revenue for the MonTEC building?”

Yes. Please contact management@montanaenterprisecenter.com for the associated NDA.

“Will there be opportunity to build other uses besides office / wet lab space?”

Yes. The anticipation is a mixed-use development. It is likely that significant demand bioscience/wet lab component would create the momentum to launch a larger scale project. Beyond these key uses, the project team anticipated proposals with other commercial and residential uses.

“Are there any DD [due diligence] folders with info like surveys for various parcels/enviro if available?”

All available information can be found in the Feasibility Study completed by DJ&A and can be requested at the form above.

“Would MonTEC be open to having a master lease for their portion or would it be individual leases with the startups?”

Given the types of lease terms that startups want and need, yes, MonTEC plans to hold a master lease for approximately 30,000 sq.ft. of building space, including both wet lab and office space.

“Does this RFP encompass one mixed-use facility (to include offices and lab space), or development of both sites with multiple facilities?”

Development of both sites with multiple facilities is the intended outcome.

“Estimate on how many people work within MonTEC/work at Missoula college?”

An estimated 100 staff work at the MonTEC building. At Missoula College, an estimated 90 staff work at the River Campus. Developers should also be aware of the students utilizing the Missoula College parking lot; there are approximately 1000 students utilizing the River Campus.

“Could a third site be included in the master plan?”

Evaluation of proposals will be based on the criteria set forth for the two sites identified in the RFP.

“Is there a strong synergy/collaboration between MonTec and Missoula College currently?”

Yes.

“Where is the best place to get the feasibility study?”

Click here to download a summary of the Feasibility Study. For more information, please complete the form above.

“How does underlying funding received from the EDA in support of MonTEC’s mission and building impact site development?”
In April 2011, MonTEC received generous support through a grant from the U.S. Department of Commerce, Economic Development Administration; the grant was to make improvements to the MonTEC building. This funding has considerations for any future developer of the MonTEC site.  At this time, the EDA-funded MonTEC building must continue to be used for the purpose of the EDA grant as a business incubator.  If a future developer wants to demolish or change the purposes of the EDA-funded building as part of redeveloping the site prior to EDA’s federal interest expiring, EDA’s regulations require that EDA be re-paid its federal share.

EDA’s regulations at 13 C.F.R. 314.5 provide the method for this calculation which generally will be determined by taking EDA’s pro-rata share (50%) of the fair market value of the property and applying it to the amount of square footage that was improved with the EDA funding (approximately 16,600 square feet). Currently, the federal interest will expire on April 8, 2031, however, under certain circumstances, EDA will consider reducing this timeframe to April 8, 2026.  EDA’s federal interest is secured through an Agreement and Mortgage recorded against the property.  Developers may find a phased development approach to initiate construction on other structures in the Innovation Corridor Gateway project prior to focusing on any changes to the existing MonTEC building beneficial.

Currently, based on the twenty-year useful life set forth in the mortgage, the EDA funding would no longer be a concern after April 8, 2031. However, with appropriate documentation, EDA will consider reducing this timeframe to April 8, 2026. EDA would still need to go through an approval process to make this change.

“Would it be possible for a developer to begin work on another structure on the MonTEC site prior to the 2026 release date without concern for triggering the EDA clawback provision?”

If a developer wanted to begin work on another structure on the MonTEC parcel covered by the EDA mortgage, the scenario must be addressed by EDA and MonTEC.

“In financial models presented in response to the RFP, could we factor in a delay in the land lease payment until a certain occupancy level was reached in the building lease out?”

Yes.

“Would UM provide a revenue guarantee for the project?”

No. However, MonTEC plans to take approximately 30,000 sq.ft. of space per the RFP as a master lease holder. This in addition to space needs articulated by more established bioscience firms that would contract directly with the developer should help meet revenue generation targets.

“Would the bioscience firms you envision being in the building sign letters of intent?”

A difficult question for any firm to answer without a clear understanding of lease space rates. However, at least one bioscience firm interviewed in January 2022 indicated they would be amenable to signing an LOI at market rates for new wet lab space.

“What guidance can you provide regarding length of land lease proposed in submissions?”

Proposals should reflect the land lease length required to support the project as envisioned. We are aware that wet lab space is particularly expensive to build and may therefore impact length required to make the project feasible.

“Could the project be phased so that performance of the first building in the project is assessed prior to commencement of build out of subsequent buildings?”

Yes.

“Could there be a residential component to the project?”

Yes. A mixed-use project is envisioned that may of course include a residential component.

“Does the project need to focus on a specific use for students?”

UM does not have a pressing need for student housing at this time. However, recognizing that commercialization of research creates jobs for our students and graduates as well as capital investment in our communities, the project must include a place for startups and established firms to locate and must meet minimum criteria needs for an expanded MonTEC.

“Could the land lease payment scale as space in building #1 was occupied by paying tenants?”

Yes. Proposed calculations allowing time for the project to build revenue and momentum may be reflected in proformas submitted by developer respondents and would be finalized in the land lease contract with successful developer candidate.

“Please confirm that MonTEC expects to lease 30,000 sf of space (combination of lab and office) in the new project, but would like the developer to build additional speculative office space for future expansion?“

Yes. MonTEC expects to occupy 30K sq. ft. of space (combination of lab and office). Method of payment for this space to be negotiated (i.e. reduction of land lease payment to be paid by developer v. payment of lease by MonTEC)  

Yes. We would like the developer to build additional speculative space that would include office space plus partially finished shell space that could be more quickly finished into wet lab space. This would presumably be used by firms graduating from the MonTEC space into market-rate space and/or bioscience firms that would like to establish or grow and existing presence in Montana.

There is an immediate need for approximately 5000 sq. ft. of market-rate wet lab space to be used by a firm currently in the MonTEC building. This lease would presumably be negotiated directly with the company.

“Under this arrangement, would the University of Montana, UM Missoula College, or MonTEC be the master lessee for the facility or be willing to enter a debt service fund replenishment agreement (subject to annual appropriation)?”

MonTEC would be the master lessee. 

“Would the flex workspace branded/staffed by the World Trade Center be in addition to the square footage outlined above? Does the World Trade Center plan to lease this space?”

Montana WTC flex workspace would be part of the 30,000 sq. ft. of MonTEC's master lease. It would include one management office,  bullpen style seating surrounded by smaller individual offices, an executive board room with adjacent large open room designed to host small receptions. Yes, individual spaces would be leased by MonTEC on short and longer-term basis depending on the space.  

“Please provide the current NNN rents that MonTEC or its tenants pay for its existing space and/or NNN rents for the new project that would be supportable.”

We can provide you with existing NNN rents paid by tenants. We understand that these will need to be higher to support the cost of building out new space. If you wish to receive these rates, please request an NDA from management@montanaenterprisecenter.com for completion and signature and we will provide the rent information promptly.

“Would MonTEC, the University of Montana, and/or Missoula College be open to the development of student and/or faculty-staff housing on the site? If so, would the respective organizations commit to leasing the units or offering affiliation/marketing agreement?”

While our primary motivation is the development of biotech and other commercial space, we are open to larger discussions.

“For future phases, would UM Missoula College consider replacement of its existing 140,000 sf building?”

Very unlikely. It's a new building.

“The feasibility document mentions city-support for a pedestrian bridge between the project and the University of Montana campus across the river. What is the funding source and when is this expected to be delivered?”

This was a reference to the Missoula Redevelopment Agency's potential interest in funding something like a pedestrian bridge across the river if they chose to participate in a project like this. Missoula Redevelopment Agency | Missoula, MT - Official Website  Any funding would have to be secured by the developer although MonTEC and UM would be strongly supportive of the deployment of TIF funds in this project.

“Would the Montana Board of Regents consider a ground lease duration longer than 40-years? If not, what terms are expected to govern extensions?”

The state is unlikely to approve a lease longer than 40-years on the Missoula College site.  (See Montana Board of Regents recent approval of 40-year term plus the option for extension. Montana State University clears the hurdle for a potential private hotel on campus | Montana State University | bozemandailychronicle.com). The MonTEC site has no such restriction.

“Would it be possible to obtain full or partial ad valorem TIF for all or a portion of the project? Would it be possible to obtain any special assessments if available under State law?”

Developers should visit with MRA regarding any potential use of TIF funds.

“If possible, please provide past three (3) years of historical financials (preferably audited) for both MonTEC and the UM Missoula College.”

MonTEC financials can be provided under customary confidentiality agreement. UM Missoula College financials are under the jurisdiction of the University of Montana CFO.  While we cannot guarantee they will be provided, they are public records and likely would be made available if required.

“Will there be additional spec space for bioscience firms beyond MonTEC startups?”

Yes. The core 30,000 square feet referenced in the RFP would be leased by MonTEC as a master lessee, in support of startup firms. Developers are further encouraged to plan for additional speculative space that could accommodate other established firms in need of wet lab and office space. Leases for this additional speculative space would be directly between the developer and established firms. Developers may consider a phased approach to finishing of interior wet lab spaces for established firms by building shell space which could be quickly finished to wet lab space once lease agreements are finalized with end-user established firms.

“If there is additional interest/spec space, would MonTEC hold the lease for that?”

Unlikely. MonTEC’s primary mission is to assist startups.

“The feasibility study made note of a land bridge to campus; is that still a possibility?”

A bridge connecting the Innovation Corridor Gateway and University of Montana Campus is not in any near-term URD plans, to the knowledge of the Project Team. It is a concept that was discussed previously as a potential use for TIF funds.

“Who owns MonTEC?”

The ground and building are entitled to MonTEC, a 501C3 that has an ongoing and close relationship with the University of Montana.